北京旅游景点联盟

『餐饮』北京前门MeetingSomeone餐厅【0963 环仕设计分享】

只看楼主 收藏 回复
  • - -
楼主

擊上方藍色『环仕设计』輕鬆關注


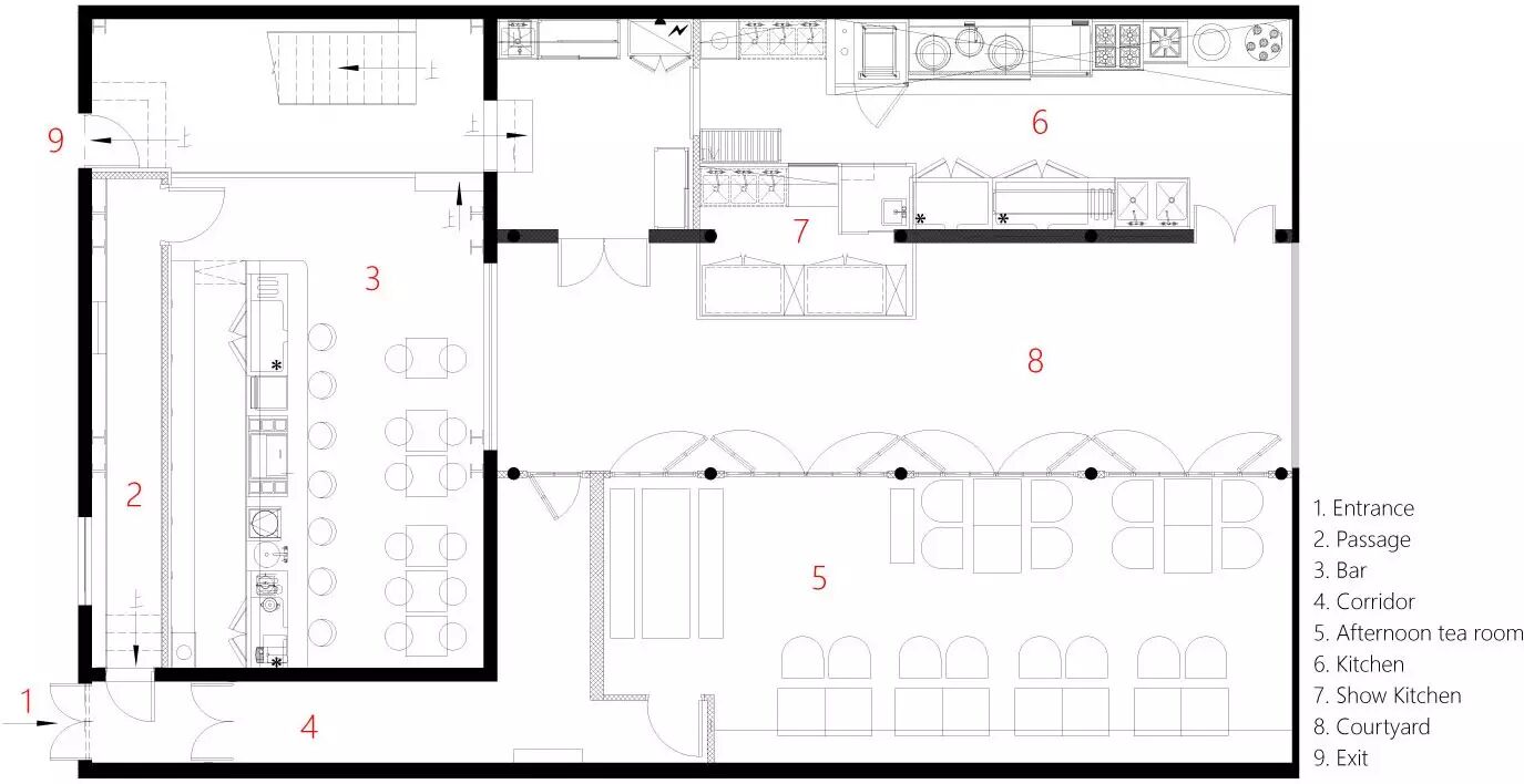
Meeting Someone包含了酒吧、下午茶、餐厅、屋顶露台及一个小小的内院。一部蓝莓之夜的电影一首1874的音乐作为引子,结合建筑、院落本身高低错落的的空间特点,设计师构想了一个充满了时空交错、富有戏剧感的体验之旅。

设计师刻意保留了二层建筑临街一侧的原始外立面外观,不给周围环境施压,追求大隐隐于市的感觉。主入口很隐蔽,只有一块小小的logo牌,稍有不慎就会错过,这是给食客第一重心理暗示,这会是一场不同寻常的探寻体验。其次,玄关设计为一个封闭的铁盒子,如何进入成为食客需要解决的第二个问题。第三,每个入口的选择都会带来之后不一样的体验。通向酒吧区的狭窄走廊,由顶部满铺的光纤灯以及两侧可以反射的黑色背漆玻璃组成。灵感来自日本艺术家草间弥生(Yayoi Kusama)的无限境屋(Infinity Mirror Room)和宫崎骏的《风之谷》动画片。每一个进入的人都会有一种走入幻境的别样体验。如果选择了另一条通道,则会进入庭院或茶室。一个空间的出口可能就是另一个空间的入口,一切都在食客的一念之间。

---------------------------------------------------点击最下方【 阅读原文 】更多设计作品敬请欣赏。

----------------------------------------------------

旗下环仕设计事务所竭诚为您提供专业的酒店、会所、办公楼、别墅等室内设计服务。

环仕设计资源分享平台由成都市环仕环境设计有限公司提供(图片来自网络)


组建最具实力的设计团队、
缔造最具品质的经典案例、

分享最具前卫的设计资源、

是我们最根本之价值,竭诚为您做最具品质的设计服务,期待合作!


若您喜欢,请点击右上角按钮分享到朋友圈,让好东西继续传递!




举报 | 1楼 回复

友情链接