北京旅游景点联盟

【朗道设计分享】北京前门皇家驿栈酒店

只看楼主 收藏 回复
  • - -
楼主

北京前门的皇家驿栈酒店曾是一个公共浴池。新酒店仍保留浴池的精神内核和神秘感。情感因素和梦境体验取代空间布局和流通性、幻象和记忆取代材料和细节成为设计的决定因素。从地下层的法国欧舒丹温泉浴池到顶层北京最大的酒店屋顶酒吧,皇家驿栈酒店将为参观者和访客提供新的公共空间和历史城市的新体验。

“水”贯穿整个设计:水从屋顶漂浮泳池中向下流出,营造出下雨般的效果,并落入酒店内一系列高低连通的室内水道;时而是溪流,时而是瀑布,从高到低,经过长途爬涉,最后再形成一场大雨,伴随着旁边瀑布的轰鸣,从15米的高空洒向这个水疗中心最核心的水疗池。

酒店房间的设计让入住者暂时远离北京的喧嚣和快节奏。每个房间的设计均不相同,以期为客人提供一个与众不同的、独特的、令人难忘的旅程。

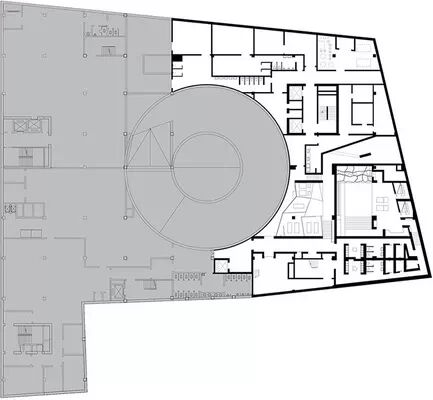
地下一层

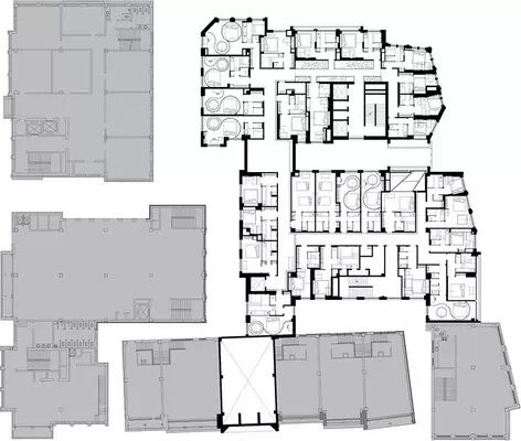
一层

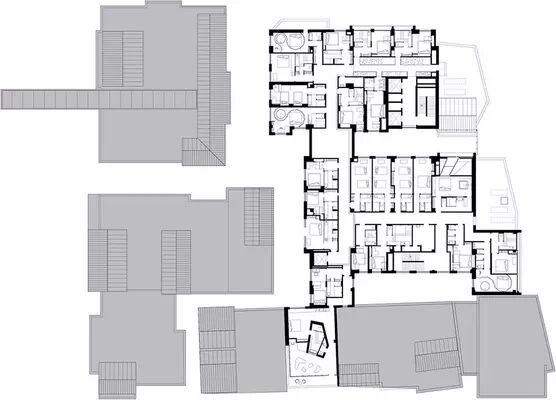
二层

三层

屋顶层

屋顶层


举报 | 1楼 回复

友情链接