北京旅游景点联盟

国内精品案例-北京前门皇家驿栈酒店

只看楼主 收藏 回复
  • - -
楼主

中國國際室內設計網-每日國內精品案例呈現

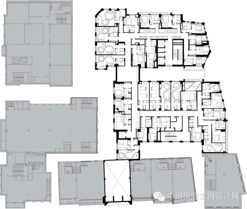
北京前門皇家驛棧酒店


作為京城首家“水”文化創意精品酒店,獨特的“水”元素在店內四處浮現,讓賓客在“水”的靜與動中體會時尚和釋放。入口處雨巷中,雨幕密集,水聲錯落,跫音迴響,開啟水的旅程


客房以與“水”元素相關的漢字命名,以六種不同的效果呈現出時尚和健康。“欲望”客房凸顯熱情與浪漫;“寧靜”客房彰顯簡約和靜謐;“神秘”客房返璞歸真貼近自然;“浮游”客房創造獨特的冥想空間;“奇跡”套房展現後現代主義設計風格,打破了房間的傳統佈局,全面創新室內空間,帶領賓客體會創意空間中的新奇與時尚。
















中國國際室內設計網微信平台第壹入口

如果您喜歡設計 如果您喜歡中國國際室內設計網平台

點擊右上角按鈕查看公共賬號關注

如果您喜歡可能您的朋友也喜歡

點擊右上角按鈕分享到朋友圈

讓中國&國際好設計 好平台傳下去...

中國國際室內設計網

網址:www.ciid88.com

全國免費客服電話:400-050-7488

歡迎訪問關注更多國際&國內最新案例!

中國國際室內設計網是壹個面向國內外室內設計全産業鏈的綜合服務交流合作的平台,網站宗旨是打造中國最具國際化、最具影響力、最具品牌價值的室內外的綜合服務媒體,在傳播和推廣先進設計文化,打造國際設計行業最具影響力的先鋒傳媒,爲國內外設計産業提供全方面立體式的品牌推廣、品牌策劃、品牌展示、行業國際交流、項目合作等綜合性服務


举报 | 1楼 回复

友情链接